2 bedroom
1 bathroom
1 reception
2 bedroom
1 bathroom
1 reception
Bradewell Road is located off either Faircroft Road or Parkfield Drive on the popular Parkfield Esate in Castle Bromwich.
The property is set back from the roadway behind a neat, block paved fore-garden / vehicular driveway large enough for multiple cars to the front and side (car port)
In turn, the property is built of traditional, two storey brick construction and is surmounted by a pitched tiled roof.
The accommodation briefly comprises
On The Ground FloorComposite Front Door to
HallwayLaminated flooring, twin panel central heating radiator, stair case off
Opening into
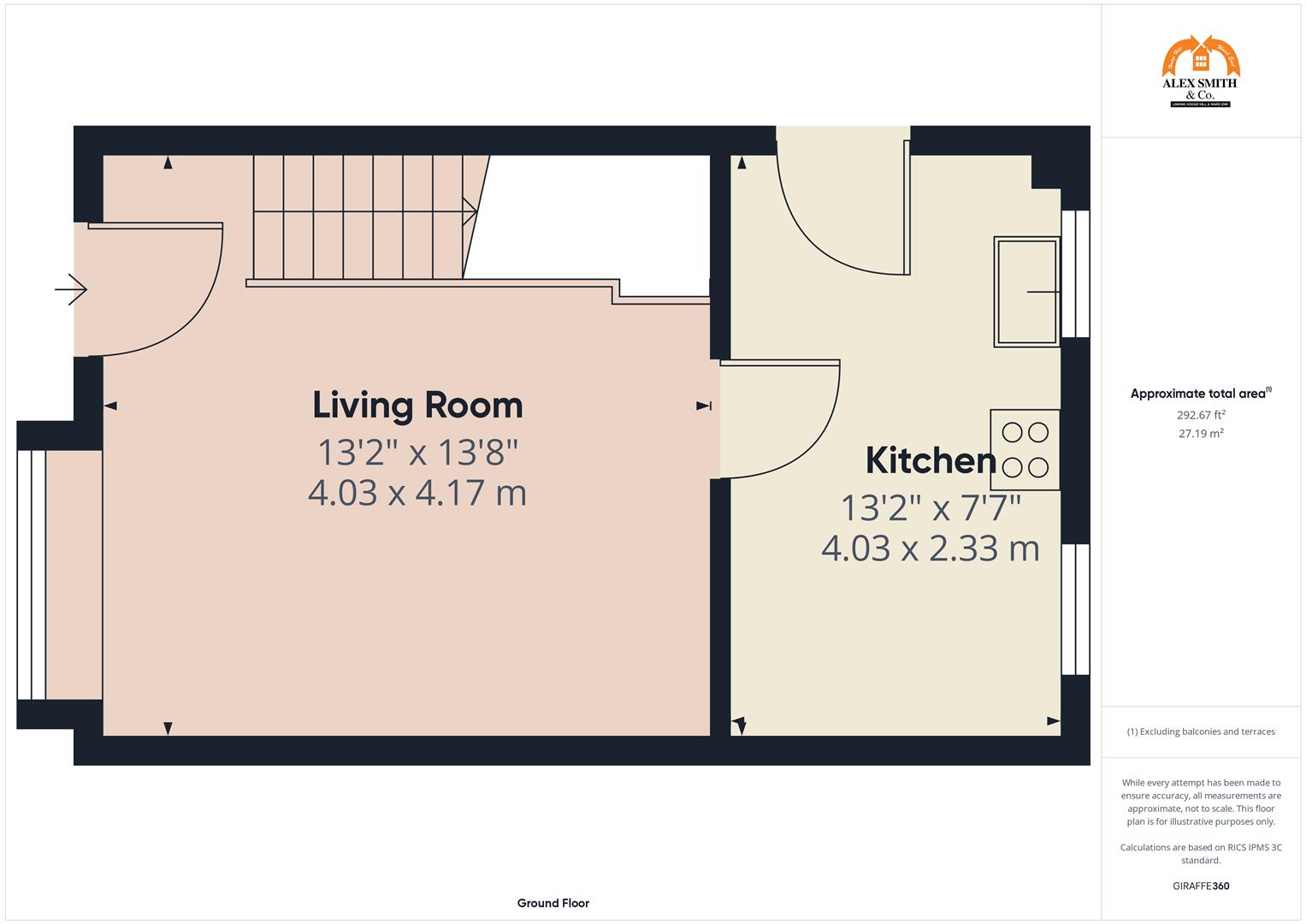
Lounge (front)4.11m x 4.01m max (13'6 x 13'2 max)Matching laminated flooring, Upvc double glazed bay window, large single panel central heating radiator, spot lights.
Full Width Kitchen (rear)4.01m x 2.29m (13'2 x 7'6)Single drainer, twin bowl sink unit with mixer taps. Double door and 3 single door base units, double door and single door wall unit. Gas cooker point, plumbing for automatic washing machine. 2 x Upvc double glazed windows and Upvc door to outside.
On The First Floor
LandingUpvc double glazed window.
Bedroom 1 (front)3.71m x 3.43m (12'2 x 11'3)2 x Upvc double glazed windows, twin panel central heating radiator, enclosed built-in double door wardrobe and additional single door store.
Bedroom 2 (rear)2.79m x 2.08m (9'2 x 6'10)Upvc double glazed window, single panel central heating radiator.
Bathroom1.78m x 1.65m (5'10 x 5'5)Tiled walls, panelled in bath with MIRA shower over, pedestal wash hand basin, low flush WC, Upvc double glazed window, heated towel rail.
OutsideSide Car Port (for additional parking)
Patio Area - Lawned Rear Garden with fenced borders.
Unknown.jpeg
DSC_9032.JPG
DSC_9033.JPG
DSC_9034.JPG
DSC_9035.JPG
DSC_9036.JPG
DSC_9037.JPG
DSC_9038.JPG
Unknown-2.jpeg








