5 bedroom
4 bathroom
5 bedroom
4 bathroom
Bradford Road runs through the heart of Castle Bromwich from its junction with Coleshill Road Clock Garage Island then joining Chester Road.
The property stands back from the roadway behind a 'in and out' block paved foregarden/vehicular driveway, together with neat and attractive lawns and edged borders.
The property has ample off road parking space to the front, as well as access to a substantial single car garage with electronic up and over door.
This much extended, double fronted property is built of traditional two storey brick construction and is surmounted by a pitched tiled roof with both full height and single height bay to the front elevation.
A substantial two storey brick built extension has taken place at this property with the appropriate Planning Permission and Building Regulation Approval granted.
THE OUTSTANDING INTERNAL ACCOMMODATION BRIEFLY COM
ON THE GROUND FLOOR
PORCH ENTRANCEWith UPVC double glazed double door and and windows. Brick built base, ceramic tiled floor.
COMPOSITE FRONT DOOR LEADING TO
RECEPTION HALLKarndean flooring, single panel central heating radiator, staircase off.
FITTED CLOAKROOMWith ceramic tiled walls and floor. Vanity wash hand basin, low flush w.c.
STUNNING LOUNGE (FRONT)6.86m x 3.40m (22'6 x 11'2)UPVC double glazed bay window, 2 single panel central heating radiators, modern wall mounted electric fire.
FEATURE SITTING ROOM (FRONT) WHICH LEADS INTO A ST
SITTING ROOM (FRONT)5.74m x 3.48m (18'10 x 11'5)Matching Karndean flooring, UP VC double glazed bay window, 2 single panel central heating radiators, centre light and single wall light point becoming
EXTENDED BREAKFAST ROOM/DINING KITCHEN5.49m max x 4.83m (max) 3.48m (min) (18' max x 15'Having central island housing a large stainless steel single bowl sink unit with mixer taps. 2 double door, 3 single door, 2 corner double door, 2 pan drawer and a pull out storage cupboard, together with integrated and concealed dishwasher.
TO THE MAIN KITCHENcaple 5 ring gas hob with glass splashback and caple extractor fan over. 2 eye level double ovens with eye level built in microwave set into a full height feature unit with additional storage above and below with adjacent full height fitted fridge (left) and full height fitted freezer (right). Additional 4 large pan drawer units, corner double door, 2 single door and a further 3 pan drawer unit all with work surface over.
Additional separate storage unit with 12 individual storage base/wall/larder units. Velux window, UPVC double glazed window.
Opening off this extended kitchen is a fitted utility room.
UTILITY ROOM2.06m x 1.80m (6'9 x 5'11)Single bowl sink unit with mixer taps, plumbing for automatic washing machine, wall mounted gas fired central heating boiler, single panel central heating radiator, large double door full height store.
EXTENDED FEATURE DINING AREA7.92m x 3.12m (26' x 10'3)With matching Karndean flooring, single panel central heating radiator, 2 Velux windows, sliding and folding bifold UPVC doors leading to outside and also providing access to
PLAYROOM (FRONT)5.87m x 3.12m (19'3 x 10'3)Matching Karndean flooring, UPVC double glazed window, single panel central heating radiator, spotlights.
WALK THROUGH4.34m (max) x 3.10m (14'3 (max) x 10'2)Matching Karndean flooring, lantern roofing, UPVC double glazed window providing access to
OFFICE/STUDY5.11m x 2.54m (16'9 x 8'4)Matching Karndean flooring, electric wall heater, UPVC double glazed window. providing access to
SIDE GARAGE5.49m x 2.49m (18' x 8'2)With electronic up and over door.
ON THE FIRST FLOOR
RETURN STAIRCASE LEADING TO
MOST ATTRACTIVE LANDINGWith full height linen and airing cupboard. 3 centre light points, single panel central heating radiator.
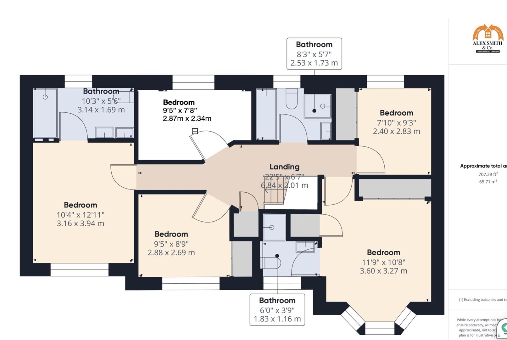
MASTER BEDROOM 1 (FRONT)4.70m (max) x 3.53m (15'5 (max) x 11'7)UPVC double glazed bow window, twin panel central heating radiator. Built in mirror fronted 3 door sliding wardrobe, additional full height linen and storage cupboard. Spotlights.
EN-SUITE SHOWER ROOM2.06m x 2.03m max (6'9 x 6'8 max)Ceramic tiled floor and half height wall tiling. Fully tiled shower cubicle, vanity wash hand. basin, low flush w.c. heated towel rail, UPVC double glazed window.
BEDROOM 2 (FRONT)3.91m x 3.12m (12'10 x 10'3)UPVC double glazed window, single panel central heating radiator, built in double door wardrobe, splotlights.
LUXURY EN-SUITE SHOWER ROOM3.12m x 1.65m (10'3 x 5'5)Fully tiled walls and floor, his and her vanity wash hand basin with 2 double door base units below. Full width double shower cubicle with multi head shower fitting, low flush w.c. heated towel rail, UPVC double glazed window, spotlights.
BEDROOM 3 (REAR)2.79m x 2.36m (9'2 x 7'9)Mirror fronted double door built in wardrobe, UPVC double glazed window, single panel central heating radiator.
BEDROOM 4 (FRONT)2.87m x 2.67m (9'5 x 8'9)Mirror fronted double door wardrobe, UPVC double glazed window, single panel central heating radiator, spotlights.
BEDROOM 5 (REAR)2.87m x 2.34m (9'5 x 7'8)Mirror fronted double door wardrobe, UPVC double glazed window, spotlights.
MODERN TILED FAMILY BATHROOM2.49m x 1.70m (8'2 x 5'7)Ceramic tiled wall and floor. Panelled in bath with hand rails, separate shower cubicle, wash hand basin, low flush w.c. heated towel rail, UPVC double glazed window.
OUTSIDESecluded rear garden with block paved patio area and artificial lawns.
COUNCIL TAX BAND:This Property falls into Solihull Council Tax Band E Council Tax Payable Per Annum £2,521.17 Year 2024/25.
Unknown-3.jpeg
DSC_8770.JPG
DSC_8771.JPG
DSC_8772.JPG
DSC_8775.JPG
DSC_8776.JPG
DSC_8778.JPG
DSC_8779.JPG
DSC_8780.JPG
DSC_8781.JPG
DSC_8783.JPG
DSC_8784.JPG
DSC_8785.JPG
DSC_8786.JPG
DSC_8787.JPG
DSC_8788.JPG
DSC_8789.JPG
DSC_8790.JPG
DSC_8791.JPG
DSC_8792.JPG
DSC_8793.JPG
DSC_8794.JPG
Unknown-1.jpeg






















