3 bedroom
1 bathroom
1 reception
3 bedroom
1 bathroom
1 reception
Maryland Avenue is located off Hodge Hill Road, which in turn leads off the main Stechford Road Hodge Hill.
The property is set back from the roadway behind a block paved foregarden/vehicular driveway that provides car parking space to the front.
In turn the property is built of traditional two storey brick construction and is surmounted by a pitched tiled roof having full height bay to the front elevation.
PLEASE NOTE that this property is of the design that has the larger style third bedroom (9'6 x 8'10).
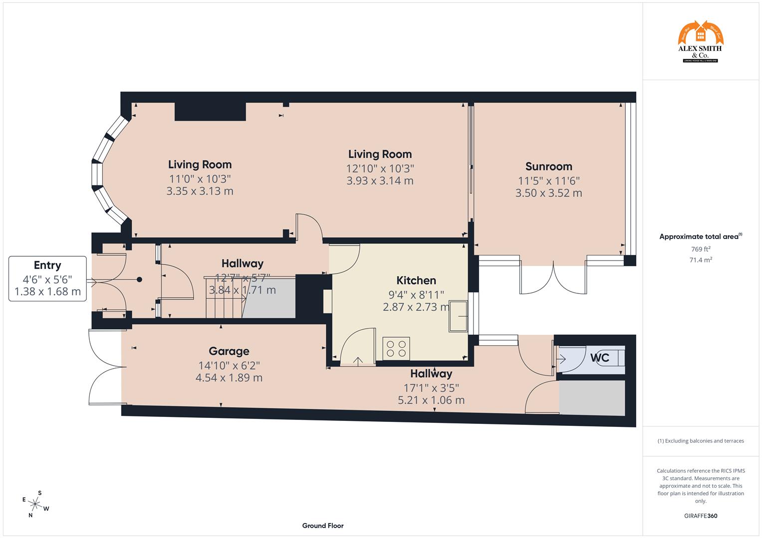
THE INTERNAL ACCOMMODATION BRIEFLY COMPRISES
ON THE GROUND FLOOR
PORCH ENTRANCEWith UPVC double glazed windows and double doors.
RECEPTION HALLUPVC front door and full height windows. Single panel central heating radiator, understairs store.
THROUGH LOUNGE7.90m x 3.10m (25'11 x 10'2)Briquette feature fireplace with quarry tiled hearth and tv stand. 2 single panel central heating radiators, UPVC double glazed bay window, UPVC sliding patio doors leading to
EXTENDED CONSERVATORY (REAR)3.66m x 3.51m (12' x 11'6)Ceramic tiled floor, brick built base, UPVC double glazed windows and doors to outside.
KITCHEN (REAR)2.82m x 2.72m (9'3 x 8'11)Ceramic tiled floor. Single drainer twin bowl sink unit with mixer taps. 2 double door base units with rounded edge work surface over. Double door display unit, 3 single door wall units, 4 ring gas hob with oven below and extractor fan over. Plumbing for automatic washing machine, single panel central heating radiator, UPVC double glazed window.
ON THE FIRST FLOOR
LANDINGLoft access, UPVC double glazed window.
BEDROOM 1 (FRONT)4.22m x 3.10m (13'10 x 10'2)UPVC double glazed bay window, single panel central heating radiator, 2 double door and further sliding double door built in wardrobe.
BEDROOM 2 (REAR)3.96m x 3.10m (13' x 10'2)UPVC double glazed window, single panel central heating radiator, 2 double door built in wardrobes with a sliding double door storage cupboard.
BEDROOM 3 (REAR)2.90m x 2.69m (9'6 x 8'10)UPVC double glazed window, single panel central heating radiator.
MODERN TILED SHOWER ROOM2.51m x 1.68m (8'3 x 5'6)Ceramic tiling to the walls and floor, modern shower cubicle, pedestal wash hand basin, low flush w.c. UPVC double glazed window, single panel central heating radiator, airing cupboard housing the WORCESTER gas fired central heating boiler.
COVERED SIDE PASSAGEWAY (WITH ACCESS OFF THE KITCHSeparate full height store. Separate toilet.
Door leading to outside.
SIDE GARAGE4.62m x 1.96m (15'2 x 6'5)Double door entrance, electric power and lighting.
OUTSIDEPaved terrace, lawned rear garden with fenced borders.
Unknown.jpeg
DSC_0220.JPG
DSC_0221.JPG
DSC_0222.JPG
DSC_0223.JPG
DSC_0224.JPG
DSC_0225.JPG
DSC_0226.JPG
DSC_0227.JPG








