2 bedroom
1 bathroom
2 receptions
2 bedroom
1 bathroom
2 receptions
Sladefield Road is located between the main Washwood Heath Road and Alum Rock Road.
The property stands well back from the roadway behind a small foregarden approach with pathway entrance.
THE INTERNAL ACCOMMODATION BRIEFLY COMPRISES
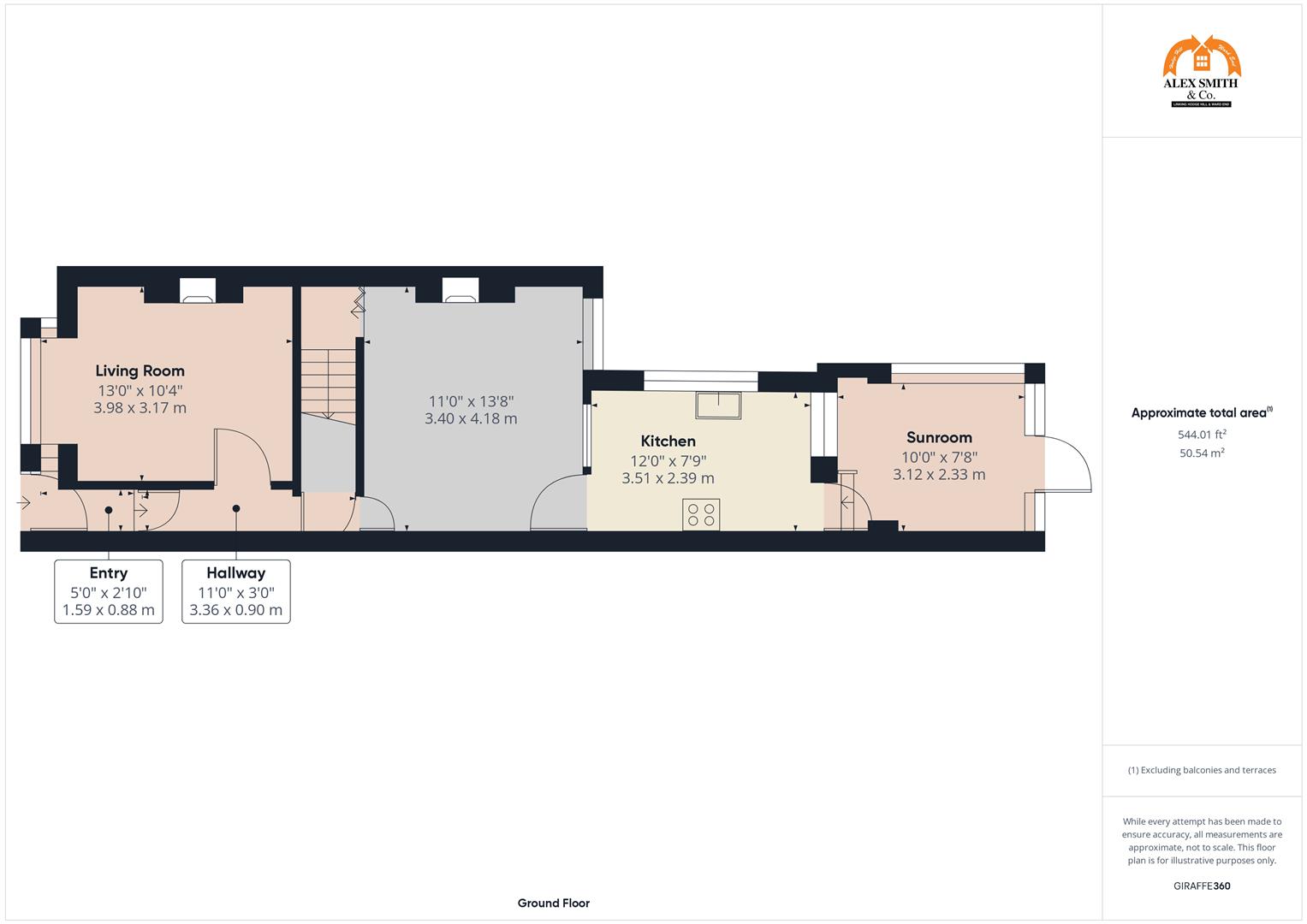
ON THE GROUND FLOOR
PORCH ENTRANCEWith UPVC double glazed front door and window.
RECEPTION HALLLaminated flooring, single panel central heating radiator. Understairs storage cupboard.
SITTING ROOM (FRONT)3.91m into bay x 3.18m (12'10 into bay x 10'5)UPVC double glazed window, single panel central heating radiator. Tiled hearth and fireplace with fitted coal effect gas fire, laminated flooring.
LOUNGE (REAR)4.17m x 3.40m (13'8 x 11'2)Stone feature fireplace with slate hearth and fitted gas fire. Twin panel central heating radiator, UPVC double glazed window, serving hatch to kitchen.
KITCHEN (REAR)3.40m x 2.24m (11'2 x 7'4)Single drainer twin bowl sink unit with a range of refitted kitchen wall and base units, comprising double door, 4 single door and a 3 drawer base unit all with rounded edge work surface over. 3 single door wall units, full height double door larder unit, 4 ring NEFF gas hob with NEFF oven below. Plumbing for automatic washing machine, UPVC double glazed door and window.
ACCESS TO EXTENDED SUN ROOM3.25m x 2.31m (10'8 x 7'7)Laminated flooring, UPVC double glazed door and windows.
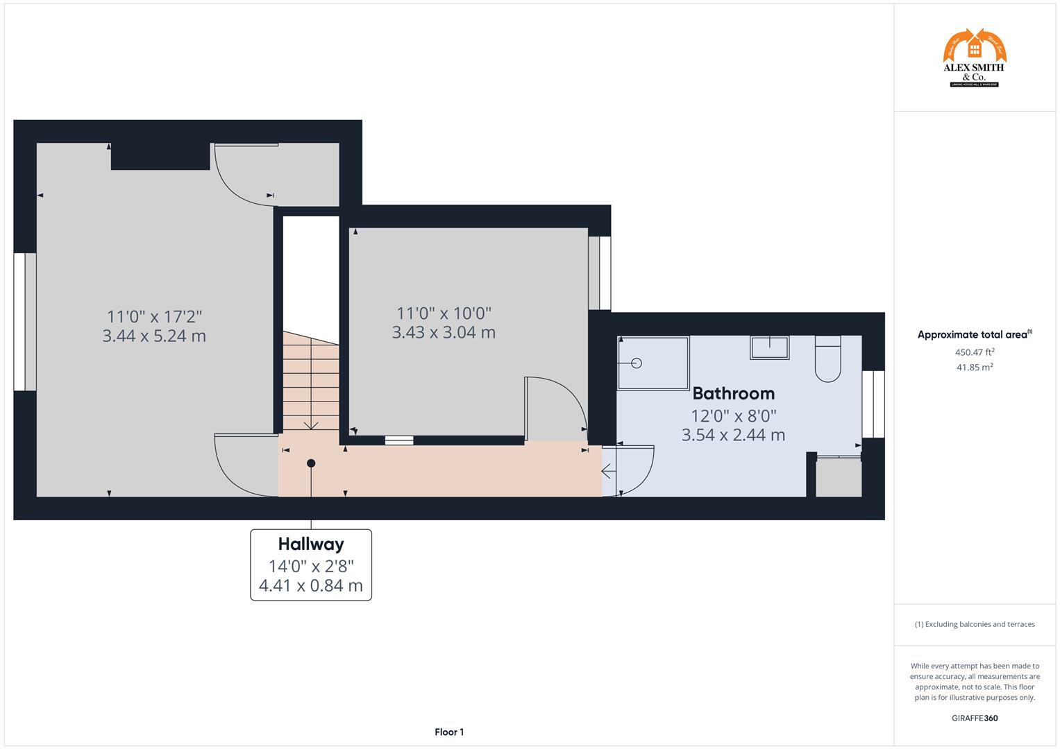
ON THE FIRST FLOOR
LANDINGSingle panel central heating radiator.
BEDROOM 1 (front)3.99m x 3.40m (13'1 x 11'2)UPVC double glazed window, twin panel central heating radiator. 3 double door and 2 single door built in wardrobes, UPVC double glazed window, twin panel central heating radiator.
BEDROOM 2 (REAR)3.40m x 2.95m (11'2 x 9'8)UPVC double glazed window, twin panel central heating radiator, 2 double door built in wardrobes.
SHOWER ROOM3.48m x 2.36m (11'5 x 7'9)Laminated flooring, double shower cubicle, pedestal wash hand basin, low flush w.c. Airing cupboard housing the Vaillant gas fired central heating boiler, UPVC double glazed window, twin panel central heating radiator.
OUTSIDEPaved terrace.
Rear garden.
COUNCIL TAX BAND:This Property falls into Birmingham Council Tax Band A Council Tax Payable Per Annum £1,389.17 Year 2024/25
Unknown.jpeg
DSC_8468.JPG
DSC_8469.JPG
DSC_8470.JPG
DSC_8471.JPG
DSC_8472.JPG
DSC_8473.JPG
DSC_8474.JPG







