2 bedroom
1 bathroom
2 receptions
2 bedroom
1 bathroom
2 receptions
Foley Road is located off the main Washwood Heath Road Ward End.
The property stands back from the roadway behind a full width block paved foregarden/vehicular driveway that provides off road parking space to the front. In turn the property is built of traditional two storey brick construction and is surmounted by a pitched tiled roof, having single height bay to the front elevation.
THE INTERNAL ACCOMMODATION BRIEFLY COMPRISES
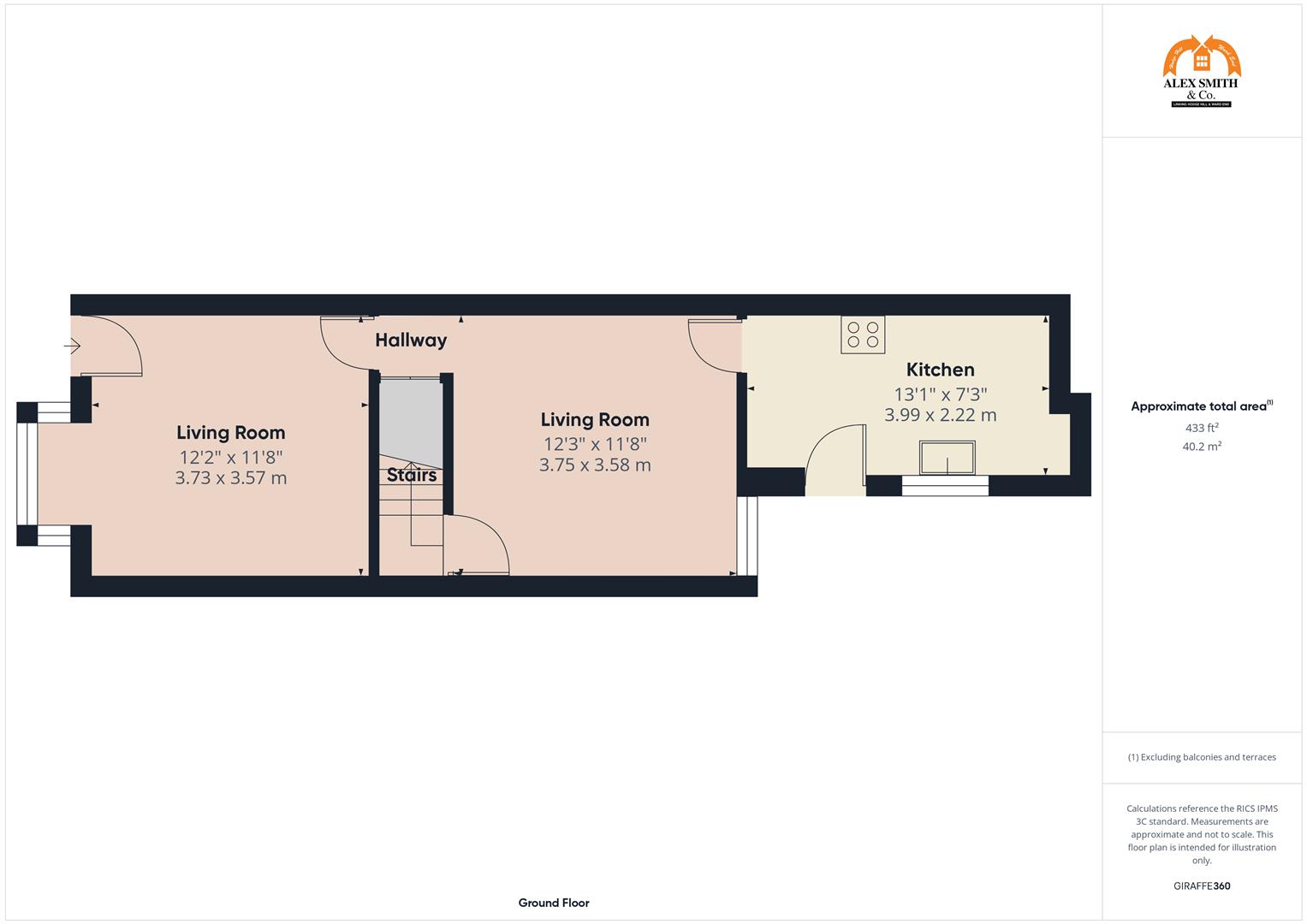
ON THE GROUND FLOOR
UPVC FRONT DOOR ENTRANCE LEADING TO
LOUNGE (FRONT)4.37m x 3.56m (14'4 x 11'8)UPVC double glazed bay window, twin panel central heating radiator.
LOUNGE (REAR)3.68m x 3.53m (12'1 x 11'7)UPVC double glazed window, twin panel central heating radiator.
KITCHEN (REAR)3.99m x 2.08m (13'1 x 6'10)Single drainer twin bowl sink unit with mixer taps, 3 double door base units, 2 double door wall units, gas cooker point, plumbing for automatic washing machine, wall mounted gas fired central heating boiler. Single panel central heating radiator, UPVC double glazed window.
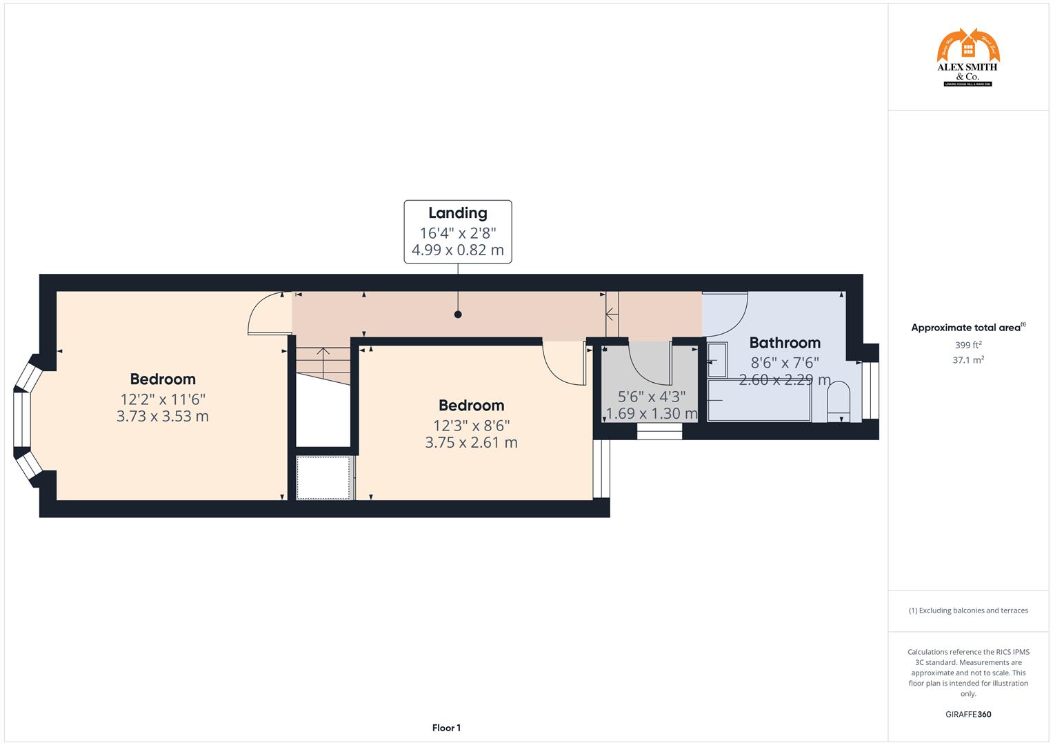
ON THE FIRST FLOOR
LANDING
BEDROOM 1 (FRONT)4.17m x 3.40m (13'8 x 11'2)UPVC double glazed window, twin panel central heating radiator.
BEDROOM 2 (REAR)3.73m x 2.62m (12'3 x 8'7)UPVC double glazed window, single panel central heating radiator, single door store.
BOX ROOM1.68m x 1.40m (5'6 x 4'7)UPVC double glazed window.
BATHROOM2.46m x 2.31m (8'1 x 7'7)Panelled in bath with vanity wash hand basin with double door unit below, low flush w.c. single panel central heating radiator, UPVC double glazed window.
OUTSIDEPaved rear garden with outhouse.
COUNCIL TAX BAND:This Property falls into Birmingham Council Tax Band A Council Tax Payable Per Annum £1,491.33 Year 2025/26.
Unknown.jpeg
DSC_9716.JPG
DSC_9715.JPG
DSC_9717.JPG
DSC_9718.JPG
DSC_9719.JPG
DSC_9720.JPG






